Now Hiring

Drum Conditioner: CO434

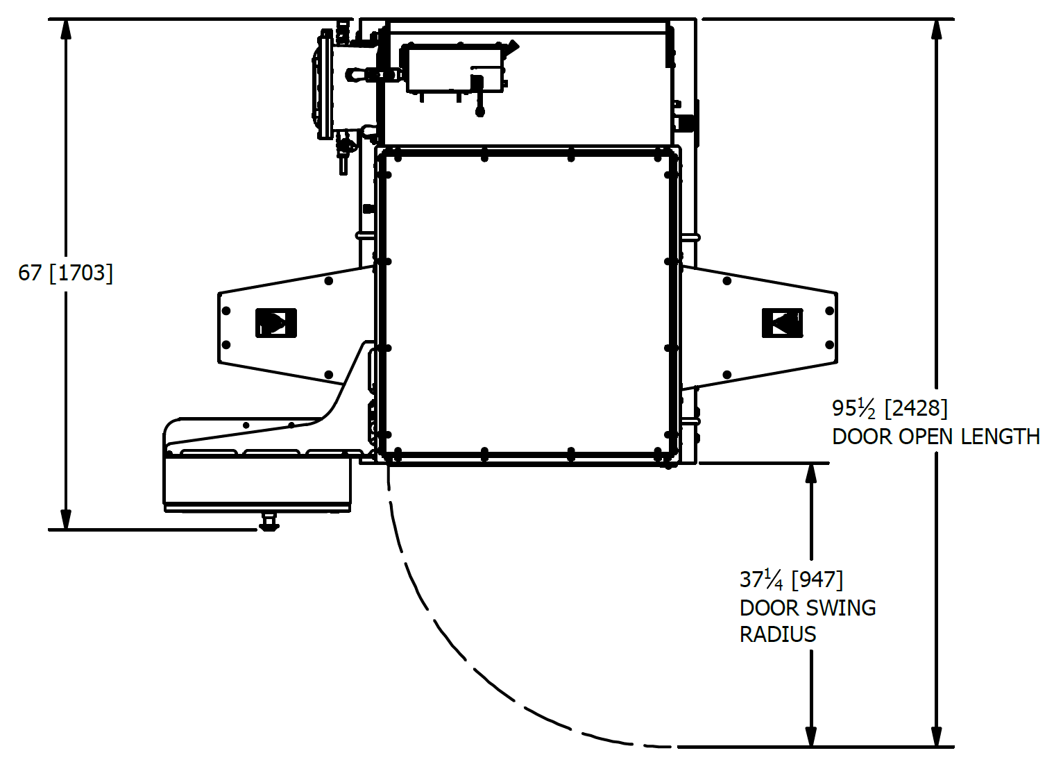
Part #2035656

  • Class I, Division 1 Execution
  • 208V / 60Hz Electric Utility
  • 25 SCFM Pneumatic Utility, Panel Purge System
  • Automated/Repeatable Conditioning
  • Improves Material Transfer Efficiency
  • Contained Conditioning
  • Simple Controls
  • Conditions All Parts of Drum
  • 25 week lead time from design approval

Specifications